2.たて子デザインのアレンジ・・・1.サブレールのあるデザイン
1.デザイン手順とパーツ選び・・・3.たて子組み手摺の基本では、たて子の入れ替えだけでおシャレ感を増していく、ごく初歩的なデザイン技法をご紹介しました。
「2-1.サブレールのあるデザイン」では、ハンドレールのすぐ下にサブレールで空間を作り、レッキーメタルの様々なタイプのパーツ利用して、そこにデコレーションを加えていくテクニックをご紹介します。
ロートアイアンの本場ヨーロッパでは通り沿いのバルコニーに頻繁に使われている、さりげなく華やかでポピュラーな技法です。バルコニーの手摺にもたれ掛る淑女の腰元に、通りを行き交う紳士の目線がついつい誘導されてしまう華麗なボーダーデコレーションを、レッキーメタルのロートアイアンパーツでリーズナブルに実現しましょう。今回も玄関ポーチ手摺の例でご案内いたします。
2-1-1: サブレールを流す

「デザイン手順とパーツ選び・・・3.たて子組み手摺の基本」Fig1-3-4の図をもとに、ハンドレールから100mm間隔を開けた位置にサブレールを流しましょう。材料は国内材6X25を使います。当然たて子は短くなり心も下にずれるので修正します。親柱間の中心のたて子1本の上部はハンドレールまで伸びているふうにしました。あたかもたて子がサブレールを貫通しているようにみえますが、製作工程ではサブレールとハンドレールの間にたて子と同材をはめ込み、溶接止めして作ります。ハンドレールのタルミ止め補強の意味合いもあり、スパンが750mmを超えると必須です。
これだけの修正でもデザインとしては十分成立し、事例もよくありますが、レッキーメタルのパーツには100mmという寸法がたくさんありますので、せっかくですからこの後これらパーツを利用してデザインしてみましょう。
2-1-2: リング系の装飾を入れてみる

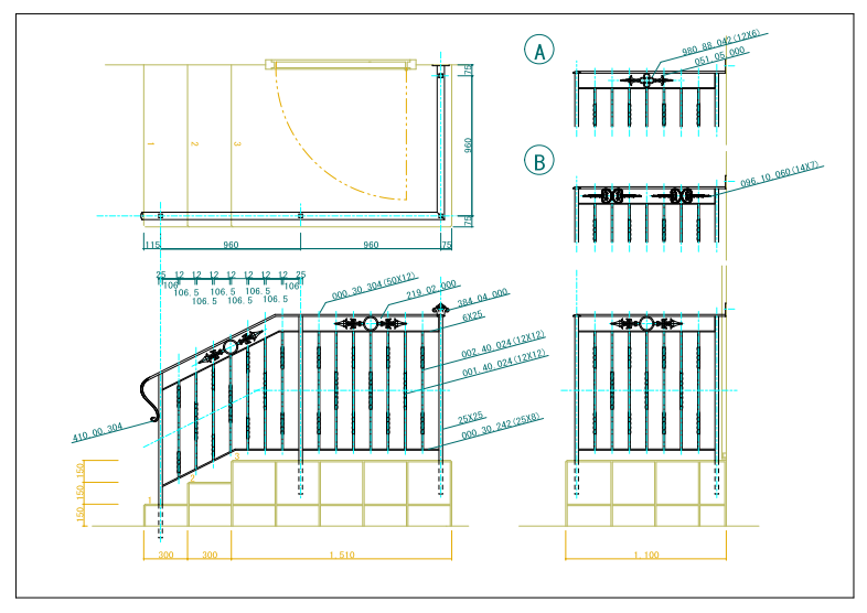
12X6でΦ100mmのリング353.31.042を入れてみましょう。デコラティヴというよりもトラディショナルな生真面目なスタイルになりましたね。
側面図の上方にニュアンスの違う別例を挙げておきました。図Aはクローバ形の円形パネル980.88.042を使いました。数も増やしましたので、少し可愛らしくなりました。
図Bは変わりリング087.10.024で背中合わせに2個組にしてみました。有名ブランドのマークにどことなく似て来てしまいましたか?
2-1-3: C形唐草に変えてみる

C形唐草は先端から渦巻き状に大きなアールになり、また小さく巻き終わる唐草パーツです。レッキーメタルでも、各断面サイズと大きさが最も多種類のパーツグループのひとつです。また、唐草パネルやたて子パネルを構成する基本パーツとして多用されています。
Fig.2-1-2のリングを443.20.042に変えてみましょう。堅苦しい感じが和らぎましたね。側面図の上方にニュアンスの違う別例を挙げておきました。図Bは同じ443.20.042を上下ひっくり返しただけですが、表情がかなり変わると思われませんか? 皆さまはどちらがお好みでしょう。
図Aは長さが150mmの442.20.042を使用して、数・向き・位置も変えてみました。
2-1-4: S形唐草を使ってみる

S形唐草は先端から渦巻き状に大きなアールになり、途中方向が逆転してまた小さく巻き終わる唐草パーツです。レッキーメタルでも、各断面サイズと大きさが最も多種類のパーツグループのひとつです。また、唐草パネルやたて子パネルを構成する基本パーツとして多用されています。
右上図を御覧ください。446.20.042をたて子・親柱際に寄せて配置してみました。お解りのように勾配部分ではたて子左右の唐草がずれて見苦しくなってしまいます。そこで親柱から2本目のたて子にパターンを移動し、勾配部は更にサブレールの上のたて子が勾配と鉛直になるようにしてみましたらうまく納まりました。唐草を上下逆さ使いにしてみても表情が変わってまた面白いと思います。
2-1-5: ボーダー用唐草パネルを利用してみる

Fig.2-1-5に使った221.11.216などは、まさにこのような使い方を想定した唐草パネルです。込み入った唐草パネルにも関わらず、製作工程ではレールへの溶接取付が3ヵ所で済むという利点があります。ただし上下巾が80mmなので、サブレール位置とたて子長さを変える必要がありますのでご注意ください。今までサブレールより上に突き出ていたたて子がなくなりましたが、唐草パネル自体がハンドレールとサブレールを繋ぎますので補強としての十分な強度が保てるので心配ありません。
図Bのアイデアも2カ所の溶接で済みます。使用する295.10.013は高さ100mmあるパーツなので、サブレール位置とたて子長さをFig.2-1-4以前の寸法に戻しましょう。
図Aは270.10.024を3枚使ったものです。その他Vol.5カタログ071ページにボーダー用唐草パネルが掲載されています。
2-1-6: モールを使う

モールは、唐草などが連続して一本の長いパーツになっているもので、製作工程では適宜切断して使います。そこで一番問題となるのは、いかにデザイン的にツジツマの合う場所で切断するかです。使用するモールは234.10.042にしました。水平部分はちょうど良い場所に切断点があたってくれました。水平と勾配の接点がどうしても綺麗に納めたい部分ですが、Fig.2-1-6が限度でしょうか。昇り端の親柱際もポイントとなります。
作図上では親柱からはみ出た左部分を消去すれば済みますが、製作工程では、一旦寸法で切り離した残り部分から復活させる部分を再度切り出す作業となります。今回はラッキーにも唐草先端部を含む1パーツを切り出すだけで済みました。
納まりの悪い部分が複数ある場合はどこを優先させ、どこを犠牲にしたらデザイン的に美しさが保たれるかがデザイナーの腕の見せ所となりますね。
2-1-7: ボーダー用唐草パネル的にパーツを組合せてみる

C形唐草410.20.042とS形唐草457.20.042を組合せてボーダー唐草パネルを作ってみました。単体の唐草パーツを何種類か集めるとオリジナルな唐草パネルのアイデアがCAD上でどんどん出来ますね。同じ断面サイズのパーツを組み合わせるのが無難ですが、真ん中に太い断面のパーツを使い、まわりに細い断面のパーツを置いていく方法なら選択枝も広がりますね。
100mm巾の唐草パネル290.10.024を見つけたので、同じ太さのリング351.31.024と組んでみたのが図Bのアイデアになります。角棒なので重量感タップリです。
図Aは005.20.042を1スパンに4枚配置しました。
2-1-8: 植物系(葉、ローゼットなど)を主役にしてみる

唐草やリングは棒状の長尺材を切出し、曲げ加工しています。レッキーメタルのパーツには板状の素材を切り抜いてそれに加工を加えたパーツもいろいろあります。その代表が葉やローゼットです。Fig.2-1-8では巾100mmでレールに接するものを選定していますが、このククリを外せば、爆発的に利用できるパーツが増えることでしょう。
製作工程では、上下のレールそれぞれに少なくとも1カ所以上で接して溶接されていることが強度を保つ条件となりますので、作図の時もご注意ください。
Fig2-1-8主図ては219.02.000をてたて子・親柱の左右に配置しました。図Aは230.05.000および左右対称の231.02.000を奇数のたて子の真上に配置しました。葉パーツにはこのような表裏のあるものも多いです。
図Bは230.05.000を2枚左右対称に置き、中心のつなぎ目処理をもあってローゼット033.01.000を付けました。製作工程では、裏に出ている脚は溶接した後切取ります。
2-1-9: 剣先を横使いで使ってみる

もともとフェンスたて子のてっぺんなどに使用する目的の剣先は、たくさんの種類があるパーツで、しかも100mm巾以下のものが多いです。ここではボーダーデコレーションの一部として横向きに使ってみます。リングや唐草を中心に左右に剣先をアレンジすると簡単なボーダー唐草の形になります。両面に模様があるので裏表が出ないのも嬉しいですね。
リング353.31.043の左右に比較的大きな072.05.000をアレンジしました。剣先の付け根はΦ16mmあるのでリングも16mm巾を使ってはみ出ないようにしました。
図Aはクローバ形の980.88.042の左右に、小型の剣先051.05.000を生やしました。
図Bは、すでにC形唐草と剣先が組み合わさっている096.10.060を背中合わせにしてみました。
2-1-10: ハンドレールの下に剣先を並べる

サブレール上に剣先を並べる手法で、位置は各たて子の真上になります。剣先パーツは高さがあるので、100mmの中で使える剣先はそれほどありません。515.05.000は下を切詰めたり角度切りすれば簡単に使えます。
図Bの163.05.000は膨らみのすぐ下で切断すると高さ100mmに納まりました。064.05.000でもよさそうな気がしましたが、勾配部分では右下がレールにあたってしまいダメでした。Fig.2-1-4のように勾配の角度に合わせてしまうと解決しますよ。
図Aの例は180.05.000を切断し高さを変えて並べたものです。パーツのてっぺんを繋ぐと円弧状になります。







